土地
この物件は72人の方が見ています
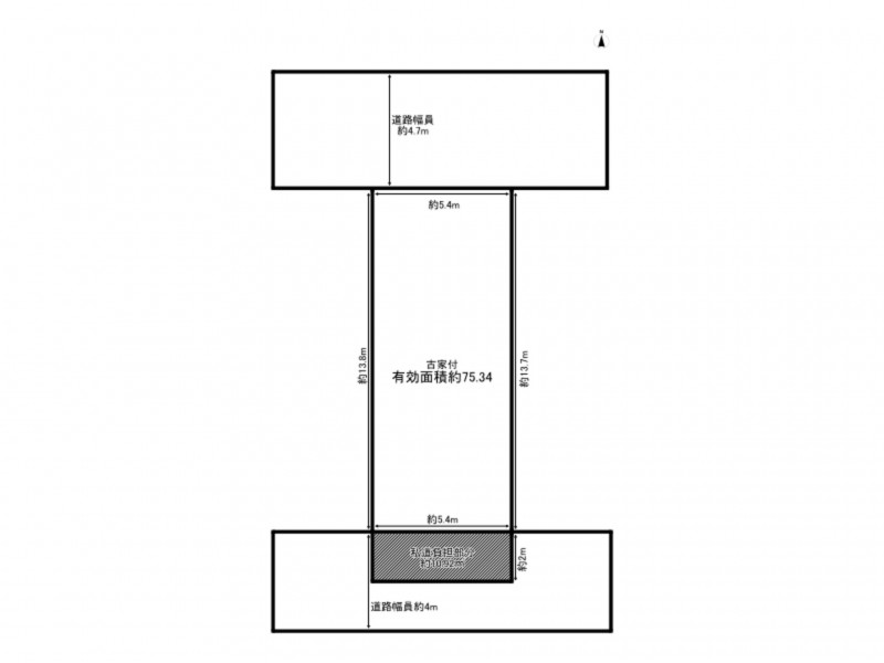
八尾市堤町3丁目
1,350万円
■建築条件無
■南北両面に接道
物件概要
| 所在地 | 八尾市堤町3丁目 | 価格 | 1,350 万円 |
|---|---|---|---|
| 交通 |
近鉄大阪線 河内山本駅 まで 徒歩18分 |
土地面積 | 75.34㎡(22.79坪) |
| 小学校区 | 山本 (350m) | 中学校区 | 上之島 (1300m) |
| セットバック | 無し | 私道負担 | |
| 土地権利 | 所有権 | 建築条件 | ー |
| 地目 | 宅地 | 都市計画 | 市街化区域 |
| 用途地域 | 1種中高 | 用途地域2 | |
| 建ぺい率 | 60% | 容積率 | 188% |
| 上水道 | 公共 | 下水道 | 公共 |
| ガス | 都市ガス | 現況 | 上物有 |
| 取引態様 | 仲介 | 明渡 | 即時 |
| 設備・条件 | |||
| 備考 | |||
弊社では、売主様に配慮し、物件所在地を掲載していない物件がございます。
詳細については、お気軽にお問合せください。
(物件番号: 1003646)
【更新年月日】2025年12月23日 【次回更新日】2026年01月23日


